Bra, frazione Bandito, casa con terreno

  • €285.000
Bra, Via Visconti Venosta
Vendita
Bra, frazione Bandito, casa con terreno
Bra, Via Visconti Venosta
  • €285.000

Descrizione

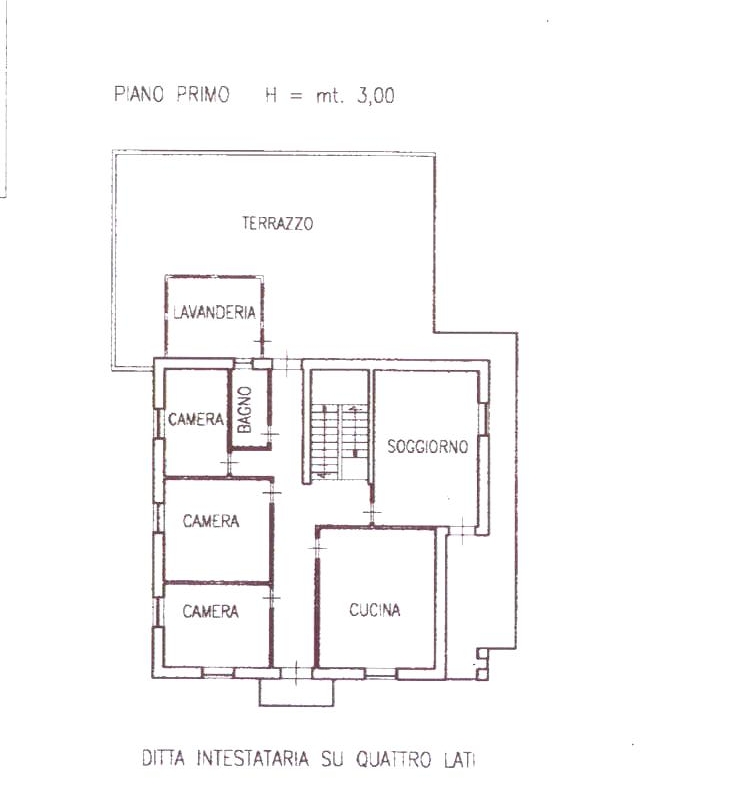
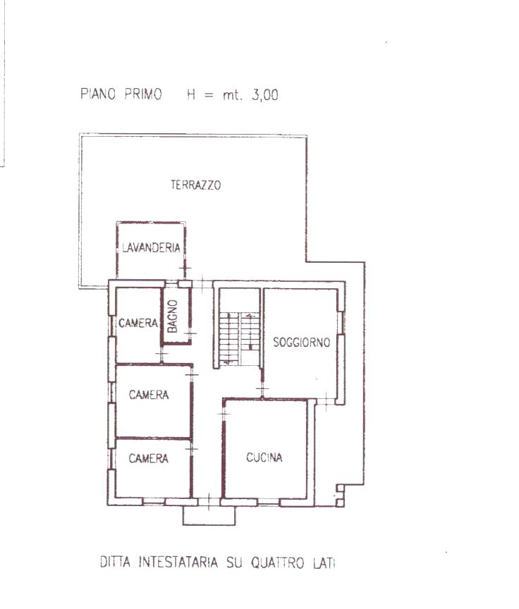
In vendita nella frazione Bandito, si trova una spaziosa casa indipendente su 4 lati, con una superficie di circa 140 mq per piano. La proprietà si sviluppa su tre livelli di seminterrato, che comprendono una grande cantina e locali di sgombero. Al piano terra, sono presenti ampi locali commerciali e un’autorimessa. Al primo piano, si trova un ampio appartamento composto da 5 vani, con due balconi e due terrazzi, uno dei quali misura circa 80 mq. Adiacente alla casa, vi è un capannone di circa 300 mq e un terreno edificabile di circa 935 mq. Il prezzo di vendita per l’intera proprietà è di € 285.000.

Dettagli

Aggiornato il Ottobre 30, 2023 a 12:13 pm
  • Codice annuncio: CA004
  • Prezzo: €285.000
  • Camere da letto: 2
  • Locali: 9
  • Bagni: 2
  • Box: 2
  • Tipologia: Casa/villa
  • Contratto: Vendita
  • Giardino privato: Si
  • Riscaldamento: Autonomo
  • Cantina: Si

Caratteristiche

  • Indirizzo Via Visconti Venosta
  • Comune Bra
  • Provincia Cuneo
  • Codice postale 12042

Panoramica

Codice annuncio: CA004
  • Casa/villa
  • Tipologia
  • 9
  • Locali
  • 2
  • Camere da letto
  • 2
  • Bagni

Confronta Strutture

Confronta
Immobiliare Bertolusso
  • Immobiliare Bertolusso